CAD二维练习题(06)绘制的方法
时间:2023-07-26 18:14:11  作者:彭老师

CAD二维练习题(06)绘制的方法,喜欢的朋友可以一起来关注软件自学网学习更多的CAD教程。

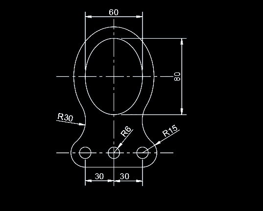
CAD二维练习题(06)尺寸图,效果如下:

CAD二维练习题(06)绘制的方法第1步

1、使用直线工具,绘制二条直线作为中心辅助线。

CAD二维练习题(06)绘制的方法第2步

2、点击椭圆工具,捕捉交点,绘制一个80x60的椭圆出来,效果如下:

CAD二维练习题(06)绘制的方法第3步

3、然后使用偏移工具,偏移椭圆12mm。

CAD二维练习题(06)绘制的方法第4步

4、同样偏移80的直线,效果如下:

CAD二维练习题(06)绘制的方法第5步

5、然后使用圆形工具,绘制直径6的圆,效果:

CAD二维练习题(06)绘制的方法第6步

6、然后向左与右复制30距离的两个圆,效果如下:

CAD二维练习题(06)绘制的方法第7步

7、然后再绘制二个圆形出来,半径为15mm。

CAD二维练习题(06)绘制的方法第8步

8、然后进行倒圆角R30的二个圆角出不,效果如下:

CAD二维练习题(06)绘制的方法第9步

9、然后使用修剪掉工具,修剪不要的部分,效果如下:

CAD二维练习题(06)绘制的方法第10步

10、然后标好尺寸就完成了哦!

CAD二维练习题(06)绘制的方法第11步

  
热门
CAD教程:简单教你绘制三维实体机械零件图
CAD2020安装序列号和产品密钥
AutoCAD三维建模教程实例
AutoCAD绘制三维图入门实例教程
cad快捷键命令大全
CAD2021安装序列号和产品密钥
cad2016安装序列号和密钥
cad2018安装序列号和密钥
cad2018怎么调出或隐藏工具栏
cad2014序列号和密钥
CAD2022安装序列号和产品密钥
cad2017安装序列号和密钥