CAD2022怎么画二维实例图一
时间:2023-07-26 15:03:16  作者:彭老师

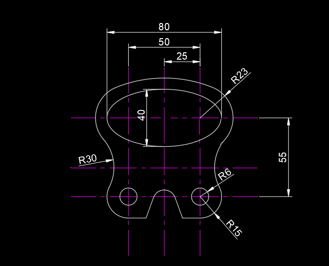
下面给大家分享的是通过CAD的圆形,椭圆,倒圆角,直线来完成下面的CAD2022二维实例图。希望能帮助到大家!

1、打开CAD2022软件,绘制下面的辅助线出来。

CAD2022怎么画二维实例图一第1步

2、然后在辅助线上,绘制下面四个小圆出来。

CAD2022怎么画二维实例图一第2步

3、然后在上面绘制二个大圆出来。

CAD2022怎么画二维实例图一第3步

4、再绘制下面的椭圆出来,80x40的椭圆。

CAD2022怎么画二维实例图一第4步

5、然后再绘下面的图形进行倒圆角处理。效果如下:

CAD2022怎么画二维实例图一第5步

6、然后再绘制上面的相切,相切圆出来,并修剪一下。

CAD2022怎么画二维实例图一第6步

7、然后把不要的部分进行修剪掉。效果如下:

CAD2022怎么画二维实例图一第7步

8、在下面的小圆上,绘制一条直线出来。效果如下:

CAD2022怎么画二维实例图一第8步

9、然后再是进行修剪不要的部分。效果如下:

CAD2022怎么画二维实例图一第9步

10、然后再绘制二条斜线出来,角度为对称角度40度。

CAD2022怎么画二维实例图一第10步

11、然后再给角进行倒8的圆角,效果如下:

CAD2022怎么画二维实例图一第11步

  
热门
CAD教程:简单教你绘制三维实体机械零件图
CAD2020安装序列号和产品密钥
AutoCAD三维建模教程实例
AutoCAD绘制三维图入门实例教程
cad快捷键命令大全
CAD2021安装序列号和产品密钥
cad2016安装序列号和密钥
cad2018安装序列号和密钥
cad2018怎么调出或隐藏工具栏
cad2014序列号和密钥
CAD2022安装序列号和产品密钥
cad2017安装序列号和密钥